Skip To Content

2216 Beech

Mcallen, TX 78501
  • $173,865
  • STATUS: Active
  • ON SITE: 630 Days
  • MLS #: 427894
$173,865
  • 0
    BEDS
  • 0.27
    ACRES
  • 0
    BATHS
  • 0
    1/2 BATHS
Neighborhood:
Type:
Vacant Land / Lots
County:
Area:

School Information

Elementary School:
Middle School:
High School:
School District:

Description

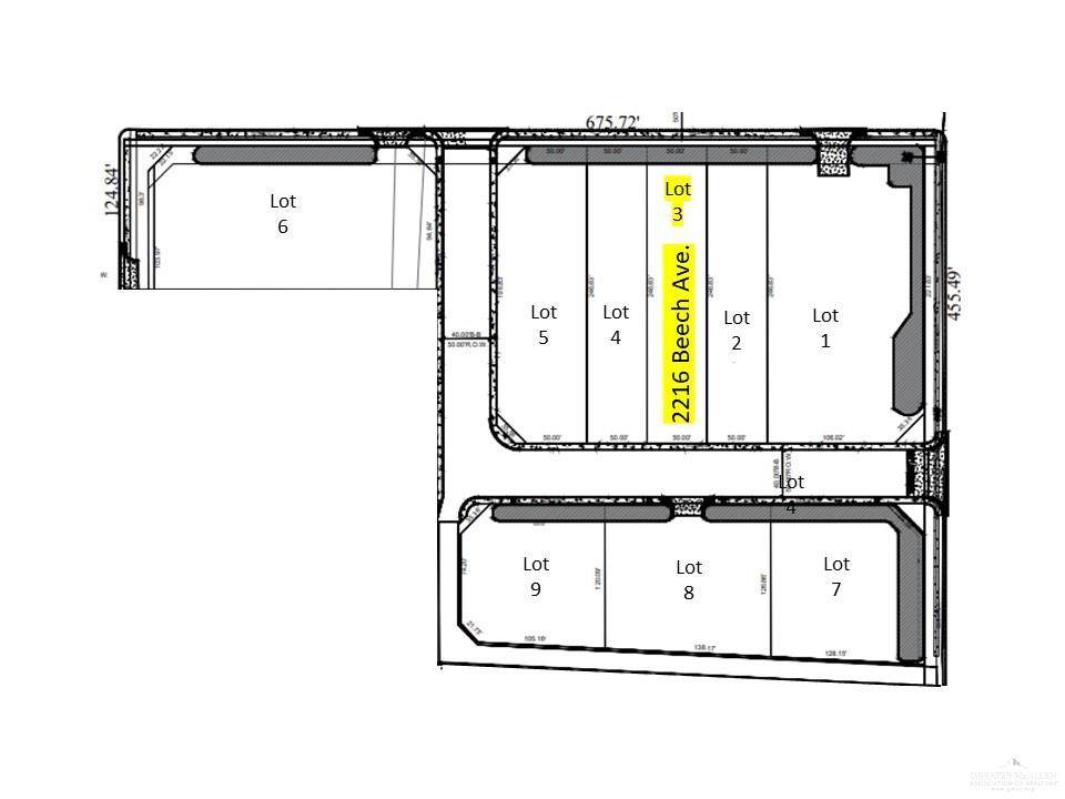
Discover the ultimate commercial opportunity at 2216 Beech Ave, McAllen, TX! This specific lot #3, spanning 0.26 acres (11,591.50 sq ft), offers unmatched potential for warehouse development. Fully developed and improved with sewer, water, and electricity, these lots are ready for you to bring your project to life and start building. With 9 lots available in various sizes, seize the chance to build your ideal warehouse and capitalize on the booming demand in this thriving business hub. Perfectly situated with easy access to major transportation routes and surrounded by a flurry of commercial activity, these lots present an irresistible investment opportunity. Don't miss your chance to be part of McAllen's dynamic landscape seize this opportunity now and unlock the door to limitless possibilities!

Monthly Payment Calculator

© 2025 Greater McAllen Association of Realtors Multiple Listing Service.
IDX information is provided exclusively for consumers' personal, non-commercial use and may not be used for any purpose other than to identify prospective properties consumers may be interested in purchasing. Data is deemed reliable but is not guaranteed accurate by the MLS or The MBTeam. Data last updated: 2025-12-06T00:18:03.34.
www.monicabenavidesteam.com/homes/148632989
Print Image

2216 Beech Mcallen, TX 78501

  • Price: $173,865
  • Status: Active
  • On Site: 630 Days
  • MLS #: 427894
0
Beds
0
Baths
0
½ Baths
0.27
Acres
Neighborhood:
Gosmar
County:
Hidalgo
Area:
Mcallen
Elementary School:
Wilson
Middle School:
Travis
High School:
Mcallen H.S.
School District:
Mcallen ISD
Property Description
Discover the ultimate commercial opportunity at 2216 Beech Ave, McAllen, TX! This specific lot #3, spanning 0.26 acres (11,591.50 sq ft), offers unmatched potential for warehouse development. Fully developed and improved with sewer, water, and electricity, these lots are ready for you to bring your project to life and start building. With 9 lots available in various sizes, seize the chance to build your ideal warehouse and capitalize on the booming demand in this thriving business hub. Perfectly situated with easy access to major transportation routes and surrounded by a flurry of commercial activity, these lots present an irresistible investment opportunity. Don't miss your chance to be part of McAllen's dynamic landscape seize this opportunity now and unlock the door to limitless possibilities!
Exterior Features

Crops None Fencing None Road Surface Type Paved RoadPaved

Property Features

Association YN No Community Features None Current Use CommercialImproved Electric On Property YN No Possible Use Commercial Property Sub Type Commercial Sewer City Sewer Tax Annual Amount 2 Tax Year 2024 Utilities City GarbageWater ConnectedSewer Connected Water Source PublicCity Zoning C3

Listing by Leslie De Leon of Abolengo Properties Llc: 956-328-6967.
© 2025 Greater McAllen Association of Realtors Multiple Listing Service.
IDX information is provided exclusively for consumers' personal, non-commercial use and may not be used for any purpose other than to identify prospective properties consumers may be interested in purchasing. Data is deemed reliable but is not guaranteed accurate by the MLS or The MBTeam. Data last updated: 2025-12-06T00:18:03.34.
 
https://bt-photos.global.ssl.fastly.net/mcallen/orig_boomver_1_427894-2.jpg
Logo
The MBTeam
1313 E Washington Ave.
Harlingen TX, 78550